ОСУЩЕСТВЛЁННЫЕ РАБОТЫ
ПРОЕКТЫ
ИЛЬЯ УТКИН
ТЕКСТЫ
ФОТОГРАФИЯ
МАСТЕРСКАЯ
КОНТАКТЫ
ОСУЩЕСТВЛЁННЫЕ РАБОТЫ
ПОСТРОЙКИ
ДИЗАЙН
ИНТЕРЬЕР
СЦЕНОГРАФИЯ
БРОДСКИЙ И УТКИН
ВЫСТАВКИ
ЗАГОРОДНАЯ ВИЛЛА
Московская область.
2002 - 2004 гг.
НАЗАД
ФАСАД
Вид с аллеи
ФАСАД
ФРАГМЕНТ ФАСАДА
Колоннада
ГЛАВНЫЙ ФАСАД
Вид со входа
ФРАГМЕНТ ГЛАВНОГО ФАСАДА
Колоннада
ФАСАД
Вид с аллеи 2
РОТОНДА
ВИД НА РОТОНДУ
СХЕМА ГЕНЕРАЛЬНОГО ПЛАНА
Авторский чертёж
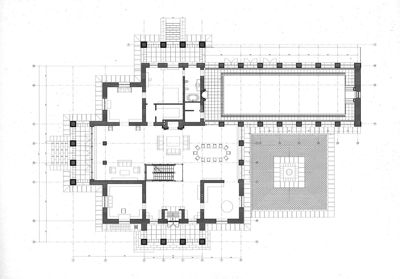
ПЛАН ПЕРВОГО ЭТАЖА
ЗАДНИЙ ФАСАД
Авторский чертёж
БОКОВЫЕ ФАСАДЫ
Авторские чертежи
ГЛАВНЫЙ ФАСАД
Авторский чертёж
ФОТОГРАФИИ ИНТЕРЬЕРА
ОБЕДЕННЫЙ ЗАЛ
ОБЕДЕННЫЙ ЗАЛ
ГОСТИНАЯ
ЛЕСТНИЦА
вид 1
ЛЕСТНИЦА
вид 2
ЛЕСТНИЦА
вид 3
ЛЮСТРА
ХОЛЛ
ХОЛЛ
ХОЛЛ 2
ШКАФ
БИЛЬЯРДНАЯ И ВИННЫЙ ПОГРЕБ
БИЛЬЯРДНАЯ
ВХОД В БАССЕЙН
БАССЕЙН
вид 1
БАССЕЙН
вид 2
БАССЕЙН
вид 3
БАССЕЙН
вид 4
СТАТЬИ:
"ЗОЛОТАЯ СЕРЕДИНА". Статья в журнале "Интерьер + дизайн" № 11, 2005 г.
.
"ВИЛЛА НОВОЙ СУДЬБЫ". Статья в журнале "Проект классика" № XIV-MMV
.
Статья в альманахе "100 частных домов"
.
Made on
Tilda